Delftsingel
Van jaren ’60 woning naar ecologisch gerenoveerde en energieneutrale villa
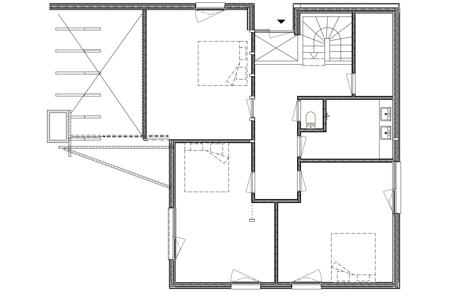
Aan de rand van het dorp Assendelft ligt een strook vrijstaande villa’s waarvan de tuinen grenzen aan open water. Onze opdrachtgever – een gezin met twee kinderen – wist hier één van deze gewilde woningen te kopen. De oorspronkelijke, gelijkvloerse bungalow dateert uit 1969. In 1976 is hier een houten kap op geplaatst om extra slaapkamers te creëren.
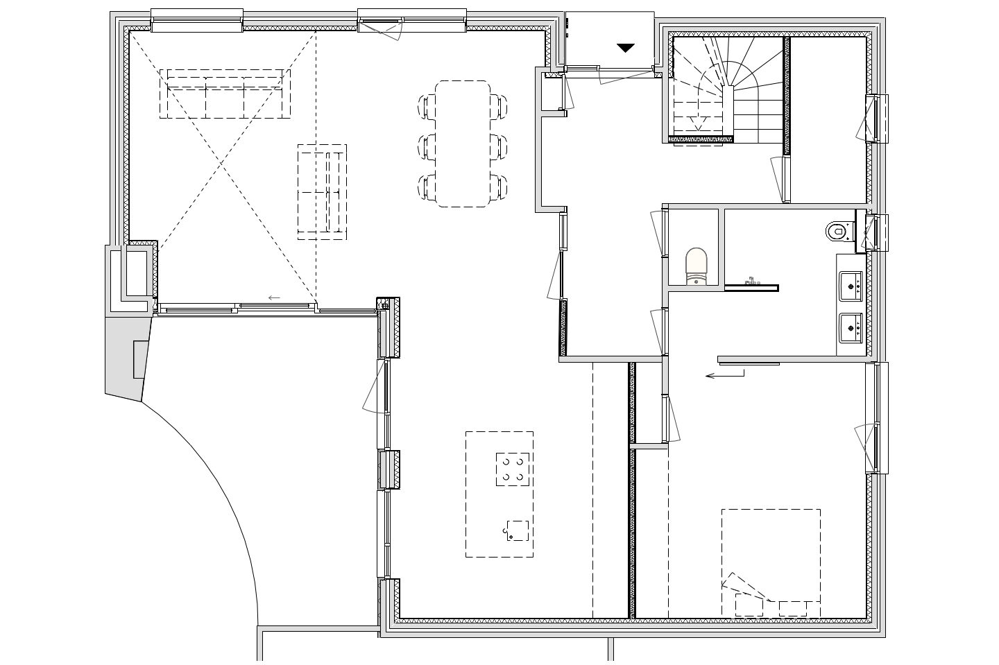
De woning was ongeïsoleerd en voldeed niet meer aan de woonwensen van het gezin. Onze opdracht was om de woning nagenoeg energieneutraal te maken. Tegelijkertijd is de indeling aangepast aan het hedendaagse gezinsleven en is het uiterlijk van de woning ingrijpend verbeterd.
Nieuw uiterlijk
De kap uit 1976 bestaat uit twee dakvlakken op verschillende hoogten. Hierdoor oogt de woning bescheiden, terwijl de omvang aanzienlijk is. In het ontwerp hebben wij deze dakvlakken meer expressie gegeven door ze aan alle zijden te laten oversteken.
De gevels aan de straatzijde behouden hun besloten karakter. Aan de tuinzijde daarentegen is de woning geopend met een hoge pui die overvloedig daglicht binnenlaat en de dubbelhoge woonkamer verbindt met de tuin en het water.
Het resultaat is een frisse, samenhangende woning die aanvoelt als één geheel – alsof het altijd zo bedoeld is geweest.
Energiehuishouden
De kern van de renovatie is het minimaliseren van de energievraag voor verwarming en koeling. De gevels en daken zijn hoogwaardig geïsoleerd en luchtdicht uitgevoerd. De woning is voorzien van een gebalanceerd ventilatiesysteem met warmteterugwinning, waardoor gevel- en kozijnroosters overbodig zijn.
In de gehele woning is vloerverwarming toegepast, die via een warmtepomp zowel verwarming als koeling levert. Zonnepanelen op het dak van de garage voorzien in de benodigde energieopwekking. Hiermee is de woning nagenoeg energieneutraal gemaakt.
Materialisering
De bestaande horizontale gevelbekleding is vervangen door circulaire hout-composiet gevelbekleding. De houten kozijnen maken plaats voor hout-aluminium kozijnen met triple glas. Aan de buitenzijde zijn deze uitgevoerd in een warme zwart-olijfgroene tint.
Het metselwerk op de begane grond is gekeimd. Door te keimen blijft de oorspronkelijke textuur van het metselwerk zichtbaar, terwijl het oppervlak wordt verduurzaamd. De kleur van het gekeimde metselwerk is afgestemd op die van de nieuwe gevelbekleding, wat zorgt voor rust en samenhang in het totaalbeeld van de villa.
verduurzamen
Zoals in veel van onze projecten is gewerkt met natuurlijke isolatiematerialen. Deze materialen hebben niet alleen een lage ecologische voetafdruk, maar dragen ook bij aan een gezond en comfortabel binnenklimaat. In de zomer houden zij de warmte aanzienlijk langer buiten dan traditionele isolatiematerialen.
Bij het vernieuwen van de dak- en gevelafwerking van de kap is de gelegenheid benut om de gevel- en dakpakketten te verdikken. Aan de buitenzijde van de houtconstructie zijn isolerende houtvezelplaten aangebracht. Aan de binnenzijde is een vochtvariabele dampremmende folie toegepast. De ruimte tussen deze lagen is volledig volgeblazen met cellulose-isolatie.
Op de begane grond is ervoor gekozen de bestaande spouwmuur met gevelmetselwerk te behouden. Om deze reden is aan de binnenzijde geïsoleerd met PIR-isolatie.


Projectinformatie
Constructeur
BT adviesbureau, Broek op Langedijk
www.bt-advies.nl














