Biobased tuinkantoor Grosthuizen
uitbouw aan voormalige pastorie
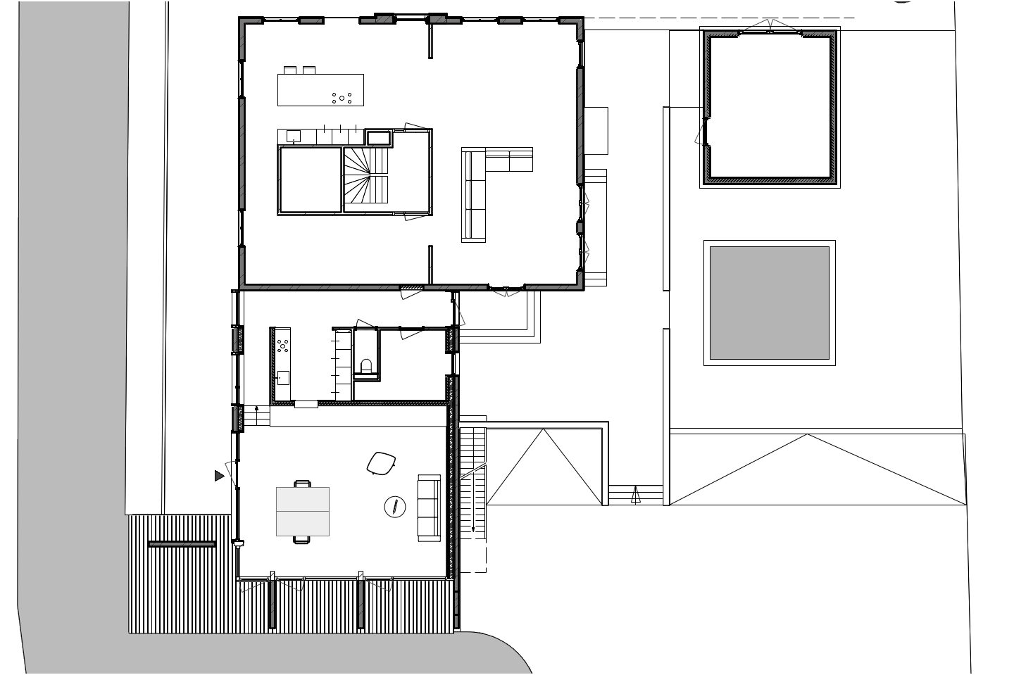
In het lintdorp Grosthuizen, nabij Hoorn, staat een voormalige pastorie die wordt bewoond door een gezin met twee kinderen. Na een eerdere herindeling van de woning in 2019, kregen wij de vraag om een rustige, zelfstandige werkruimte in de tuin te realiseren.
Relatie pastorie en tuin
In plaats van een losstaand tuinkantoor is gekozen voor een uitbouw aan de achterzijde van de pastorie, rondom een bestaande aanbouw. Hierdoor konden aanwezige voorzieningen worden hergebruikt, ontstond er ruimte voor een privé dakterras met uitzicht over de polders en kreeg de werkruimte een eigen entree, los van het privéleven in de woning.
De werkruimte is via een gang en trap bereikbaar vanuit het huis, maar voelt volledig zelfstandig. Een nieuw aangelegde vijver, die aansluit op de naastgelegen sloot, vormt een natuurlijke scheiding met de tuin en zorgt tegelijkertijd voor een bijzonder lichtspel in de ruimte.
Sereniteit en biobases materialen
Voor het ontwerp is uitsluitend gewerkt met biobased materialen. De houten constructie blijft in het zicht, isolatie bestaat uit houtvezel en de binnenwanden zijn uitgevoerd in leemblokken en leemstuc. Ook de gevel is opgebouwd uit leem en hout. Aan de zuidzijde zorgt een veranda voor beschutting tegen de zomerzon en een terras aan het water. Het resultaat is een serene, gezonde en landschappelijk ingebedde werkplek.
projectinformatie
constructeur
De Ingenieursgroep
www.deingenieursgroep.nl

















